物件をお探しの方はこちら

カテゴリ:新築戸建

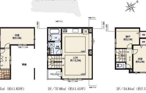
6,650万円
2SLDK 114.06m²
ワンフロアに水まわりを集中、生活に配慮した間取り(間取)2026年4月完成予定(外観)
価格(税込)
6,650万円
新築戸建
間取
2SLDK
所在地 東京都葛飾区 新宿1丁目  新宿3期
交通 京成本線 京成高砂駅 徒歩17分
JR常磐線 亀有駅 徒歩22分
築年月 2026/04 構造 木造
階建 地上 3階 部屋階数
面積 114.06m² 土地 65.56m² 建蔽率/容積率 70% / 160%
区画番号1 現況 未完成
物件番号 20260213
設備・条件 未入居 システムキッチン 食器洗い乾燥機 独立洗面台 浴室乾燥機 バス・トイレ別 温水洗浄便座 床暖房 W.INクローゼット 室内洗濯機置き場 洗濯機置き場有 TVドアホン 都市ガス 公営水道 駐車場有 バルコニー フローリング
キッチンにパントリー・タオルや洗剤のストックにリネン庫あり 浄水器もついてます。
5,999万円
2SLDK 101.84m²
(間取)(外観)
価格(税込)
5,999万円
新築戸建
間取
2SLDK
所在地 東京都葛飾区 柴又3丁目  柴又9期
交通 京成金町線 柴又駅 徒歩10分
京成金町線 京成金町駅 徒歩15分
京成本線 京成高砂駅 徒歩18分
築年月 2026/02 構造 木造
階建 地上 3階 部屋階数
面積 101.84m² 建蔽率/容積率 60% / 200%
区画番号 現況 空家
物件番号 20260302
設備・条件 未入居 ガスコンロ 三口コンロ システムキッチン 食器洗い乾燥機 独立洗面台 浴室乾燥機 バス・トイレ別 温水洗浄便座 床暖房 W.INクローゼット 室内洗濯機置き場 洗濯機置き場有 TVドアホン 都市ガス 公営水道 駐車場有 バルコニー フローリング
床暖房

前のページにもどる

Fudousan Plugin Ver.5.8.1